Скрытые петли для дверей стали популярным решением при установке межкомнатных и металлических конструкций. Они обладают надежностью и эстетическим внешним видом благодаря своей скрытой установке. В этой статье мы рассмотрим процесс установки и регулировки внутренних потайных петель для дверей.
Установка скрытых петель начинается с выбора подходящей конструкции. Существует несколько типов скрытых петель, которые подходят для разных видов дверей. Чтобы выбрать правильную петлю, необходимо учитывать материал двери, ее размеры и вес. Также важно обратить внимание на дизайн петли, чтобы она соответствовала стилю и общей концепции интерьера.
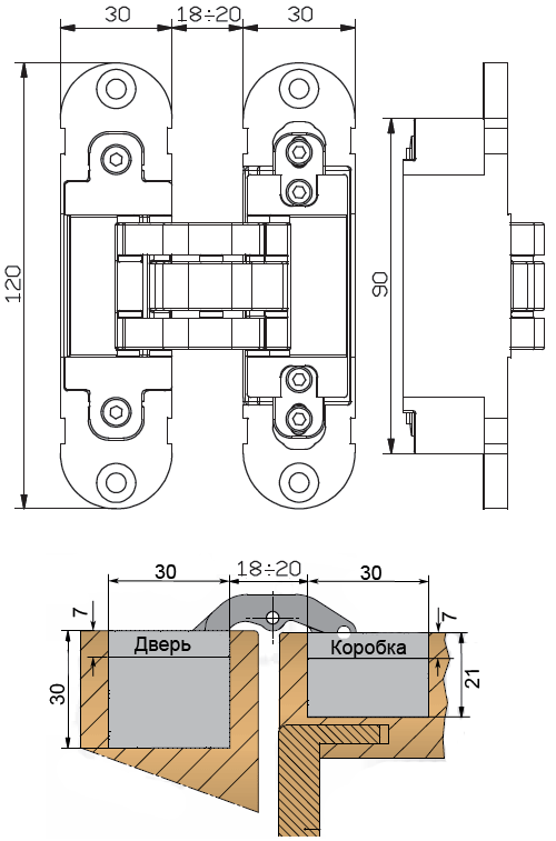
После выбора петли, следует провести подготовительные работы. Для установки скрытых петель потребуется вырезать пазы в двери и дверном блоке. Это может быть сложной задачей, поэтому рекомендуется обратиться к профессионалам или использовать специальные инструменты для точной работы с материалом. После вырезания пазов, петли устанавливают в них и закрепляют с помощью винтов или болтов, предусмотренных в комплекте петель.
После установки, необходимо провести регулировку скрытых петель. Они должны быть правильно отрегулированы, чтобы дверь открывалась и закрывалась плавно и без усилий. Регулировка включает в себя правильное положение петель, установку положения двери относительно дверного блока и регулировку шарнирного механизма. Все эти шаги требуют точности и внимания к деталям.
Установка и регулировка скрытых петель для дверей
Перед установкой скрытых петель необходимо произвести подготовительные работы. Сначала нужно определить место размещения петель на двери и дверной раме. Для этого следует использовать специальный монтажный шаблон, который обеспечит точное расположение петель. Затем необходимо вырезать отверстия, соответствующие размерам петель, с помощью фрезы или долота. После этого можно приступить к установке петель.
Установка скрытых петель начинается с вставки петельной части в дверное полотно, а затем в дверную раму. При необходимости следует использовать регулируемые шайбы или прокладки для точного выравнивания двери и рамы. После установки петель следует проверить их работоспособность, открыв дверь несколько раз и убедившись, что она хорошо закрывается и не продувается.
При регулировке скрытых петель необходимо быть внимательным и аккуратным, чтобы не повредить петельный механизм. Для регулировки используются специальные регулировочные винты, которые позволяют изменить положение петель в горизонтальной и вертикальной плоскости. Регулировка петель может потребоваться для обеспечения идеальной подгонки двери, исключения скрипа или люфта.
При установке и регулировке скрытых петель необходимо соблюдать некоторые меры предосторожности. Работать следует осторожно, чтобы не поцарапать дверь или дверную раму. Также необходимо следить за тем, чтобы петлевой механизм не перегружался и не проваливался внутрь двери или рамы. После установки и регулировки петели следует проверить их надежность и готовность к эксплуатации.
Внутренние потайные петли для металлических конструкций
Установка внутренних потайных петель для металлических дверей требует определенных навыков и инструментов. Сначала необходимо подготовить отверстия в металлическом профиле, согласно указаниям производителя. Затем следует установить петли в отверстия и закрепить их с помощью специальных крепежных элементов.
При установке внутренних потайных петель для металлических конструкций также необходимо обратить внимание на регулировку петель. Это позволит корректно выровнять дверь и обеспечить безупречное ее функционирование. Процедура регулировки включает в себя изменение положения петель относительно двери, а также регулировку шарнирного механизма.
| Преимущества внутренних потайных петель для металлических конструкций: |
|---|
| 1. Скрытая конструкция не нарушает общий внешний вид двери и помещения. |
| 2. Обеспечивают прочное крепление двери в металлической конструкции. |
| 3. Упрощают процесс открывания и закрывания двери. |
| 4. Имеют возможность регулировки для выравнивания и корректной работы двери. |
| 5. Повышают безопасность и защиту от несанкционированного проникновения. |
Установка скрытых петель для металлических дверей
Скрытые петли для металлических дверей представляют собой незаметные и эстетически привлекательные решения для установки дверей в различных помещениях. Они обеспечивают гладкое и бесшумное открытие и закрытие дверей, а также позволяют регулировать их положение для достижения точного выравнивания. Это делает их идеальным выбором для современных интерьеров, где акцент делается на минимализме и чистых линиях.
Установка скрытых петель для металлических дверей может быть немного сложной задачей, требующей определенных навыков и инструментов. Важно сначала измерить и отметить места, где будут расположены петли на двери и дверном коробе. Затем с помощью специальных инструментов необходимо вырезать фрезером пазы для петель в металле. После этого следует закрепить петли в пазах с помощью винтов или штифтов и проверить, чтобы дверь хорошо открывалась и закрывалась без заедания.
Регулировка скрытых петель для металлических дверей также может потребовать некоторых навыков и инструментов. В общем случае, для регулировки петель используются специальные ключи или отвертки. Они позволяют вращать винты на петлях для поднятия или опускания двери, а также для ее горизонтального выравнивания. Важно проверить каждое изменение в положении двери, чтобы достичь идеального выравнивания и сделать необходимые корректировки.
Установка и регулировка скрытых петель для металлических дверей может потребовать определенных навыков и инструментов. Поэтому, если у вас нет достаточного опыта или уверенности в своих способностях, лучше обратиться к профессиональным специалистам, чтобы установка была выполнена правильно и безопасно. В результате вы получите надежные и эстетически привлекательные двери, которые служат вам долгое время.
Регулировка скрытых петель для металлических дверей
Для регулировки скрытых петель необходимо выполнить следующие шаги:
- Откройте дверь полностью и зафиксируйте ее в данном положении, чтобы она не закрывалась в процессе работы.
- С помощью отвертки откройте защитный кожух петли, чтобы получить доступ к регулировочным винтам.
- Настройте высоту двери с помощью верхних регулировочных винтов. Если дверь слишком низко или высоко, вращайте соответствующий винт, чтобы подвинуть дверной лист вверх или вниз.
- Настройте горизонтальное положение двери с помощью боковых регулировочных винтов. Вращайте эти винты, чтобы сместить дверь влево или вправо, пока она не будет равномерно распределена по ширине проема.
- После настройки позиции двери закройте защитный кожух петли и проверьте работу двери, убедившись в полной ее функциональности.
Качественная регулировка скрытых петель позволит избежать неудобств и продлит срок службы двери, обеспечивая ее надежность и безопасность.
Внутренние потайные петли для межкомнатных конструкций
Установка внутренних потайных петель для межкомнатных дверей может быть выполнена как при закладке проема, так и в готовых конструкциях. Этот вид петель часто используется для скрытия механизмов и придания двери элегантного внешнего вида.
Основные преимущества внутренних потайных петель:
- Эстетическая привлекательность — петли полностью скрываются внутри двери, что придает ей аккуратный и изящный вид;
- Повышенная прочность и долговечность — петли изготавливаются из высококачественных материалов, благодаря чему обеспечивают долгую эксплуатацию;
- Удобство в использовании — отличительной особенностью внутренних потайных петель является плавный и бесшумный ход двери;
- Возможность регулировки — петли позволяют регулировать положение двери по высоте и по горизонтали для идеального прилегания к дверному проему;
- Простота в установке — система крепления петель проста и понятна в использовании, что позволяет сократить время монтажа.
Внутренние потайные петли отлично сочетаются с различными материалами и дизайнами межкомнатных дверей. Они могут быть использованы как в деревянных, так и в металлических конструкциях. Благодаря обширному выбору моделей и разных цветовых решений, вы сможете подобрать петли, которые наиболее гармонично впишутся в интерьер вашего помещения.
| Шаг | Действие |
|---|---|
| 1 | Подготовьте дверную коробку и дверное полотно, обеспечьте горизонтальное положение полотна в проеме. |
| 2 | С помощью шаблона, нанесите места установки потайной петли на коробку и полотно. |
| 3 | Завершите фрезерование мест установки петель, используя фрезу соответствующего диаметра. |
| 4 | Установите петли в соответствующие места и закрепите их при помощи винтов. |
| 5 | Проверьте правильность установки и осуществите регулировку двери при необходимости. |
| 6 | Закройте петли крышками для создания гармоничного внешнего вида. |
Внутренние потайные петли для межкомнатных конструкций являются надежным и привлекательным решением для установки дверей. Они обеспечивают мягкое и бесшумное закрывание двери, придают интерьеру особый шарм и позволяют создать пространство с безупречным внешним видом.
Установка скрытых петель для межкомнатных дверей
Прежде чем приступить к установке скрытых петель, необходимо выбрать подходящую модель, которая подходит к вашей двери и общему стилю помещения. Скрывающиеся петли могут быть использованы с различными материалами, включая металлические и межкомнатные конструкции.
При установке скрытых петель следует учитывать такие факторы, как направление открывания двери, размеры и вес двери, а также плотность и надежность крепления петель к двери и дверной коробке. Тщательно измерьте и отметьте места расположения петель на двери и коробке, чтобы гарантировать правильное выравнивание и функциональность.
После выбора места для установки петель, сделайте отверстия в двери и коробке с помощью отвертки, дрели или специального инструмента для работы с деревом или металлом. Убедитесь, что отверстия соответствуют размерам выбранных скрытых петель.
Затем вставьте петли в отверстия, прикрепите их к двери и коробке с помощью винтов или других крепежных элементов, предоставляемых вместе с петлями. Проверьте, чтобы петли были надежно закреплены и дверь открывалась и закрывалась плавно и безупречно.
После установки петель рекомендуется произвести регулировку, чтобы дверь полностью соответствовала вашим требованиям и ожиданиям. При необходимости вы можете подстроить петли, чтобы дверь открывалась на нужный угол и не касалась пола или других препятствий.
Установка скрытых петель для межкомнатных дверей является ответственным этапом, который требует аккуратности и точности. Если у вас нет опыта работы с петлями или вам нужна помощь, лучше обратиться к специалистам, которые смогут выполнить установку качественно и безопасно.
Правильно установленные скрытые петли не только придают двери эстетическое преимущество, но и обеспечивают долговечность, надежность и комфорт в использовании. Убедитесь, что вы правильно выбрали и установили скрытые петли для межкомнатных дверей, чтобы создать безупречный интерьер вашего помещения.
Регулировка скрытых петель для межкомнатных дверей
Однако со временем, из-за различных факторов, таких как перемычки, усадка дома или неаккуратное использование двери, петли могут потерять свою первоначальную настройку и стать несколько смещенными. В таких случаях требуется регулировка скрытых петель для достижения оптимальной работы двери.
Прежде чем приступить к регулировке, следует знать, что внутренние потайные петли имеют два вида регулировки: горизонтальное и вертикальное.
При горизонтальной регулировке можно изменить положение двери по горизонтали, чтобы она легко закрывалась и открывалась без какого-либо сопротивления. Для этого используется специальный регулирующий механизм, который позволяет сдвигать петли вправо или влево.
Вертикальная регулировка позволяет изменять высоту двери. Она необходима, если дверь соприкасается с полом или потолком и не удается достичь оптимального зазора. Для регулировки высоты петель используется специальный ключ, который позволяет поднять или опустить петли.
Важно отметить, что регулировка скрытых петель требует аккуратности и точности. Рекомендуется обратиться к профессионалам, чтобы быть уверенным в правильной настройке петель и избежать возможных проблем в будущем.
- Проверьте закрывается ли дверь с легкостью. Если дверь заедает или требует усилий для закрытия, возможно потребуется регулировка петель.
- Используйте регулирующий механизм для горизонтальной регулировки. Подстроить положение двери, чтобы она закрывалась ровно и без проблем.
- При необходимости, произведите вертикальную регулировку с помощью ключа. Поднимите или опустите петли, чтобы достичь требуемого зазора между дверью и полом или потолком.
- Закрепите петли в новом положении, чтобы они не расхаживались во время использования двери.
Правильная регулировка скрытых петель для межкомнатных дверей позволит двери функционировать бесшумно и плавно. Это также обеспечит согласованность с окружающим интерьером и создаст гармоничный облик помещения.





